
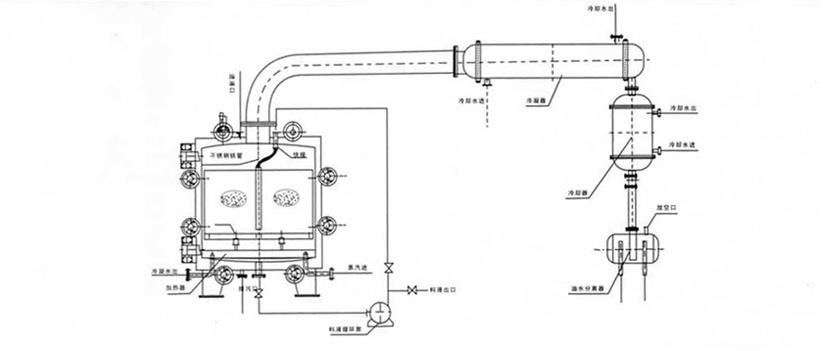
This equipment is widely applicable to various process operations in industries such as traditional Chinese medicine, food, chemical, etc., including atmospheric pressure, micro pressure water decoction, hot reflux, forced circulation infiltration, aromatic oil extraction, and organic coal recovery.
By using this device, there is no need to use compressed air, which can reduce operating costs. The material can be directly fed in and out using a small car, which is convenient and easy to operate, greatly saving auxiliary time.

